Tak ma wyglądać wystawa Muzeum Westerplatte i Wojny 1939
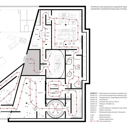
Muzeum II Wojny Światowej w Gdańsku rozstrzygnęło konkurs na opracowanie koncepcji projektowej wystawy Muzeum Westerplatte i Wojny 1939. Złożono cztery prace. Zwyciężyła spółka Trias AVI z Warszawy.
Więcej: Jest koncepcja projektowa wystawy Muzeum Westerplatte i Wojny 1939


Napisz komentarz
Komentarze